Arbeiten und Wohnen in Kirchheim unter Teck

1.500.000,00 €

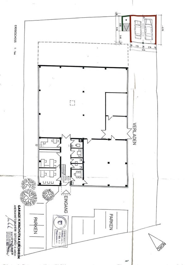
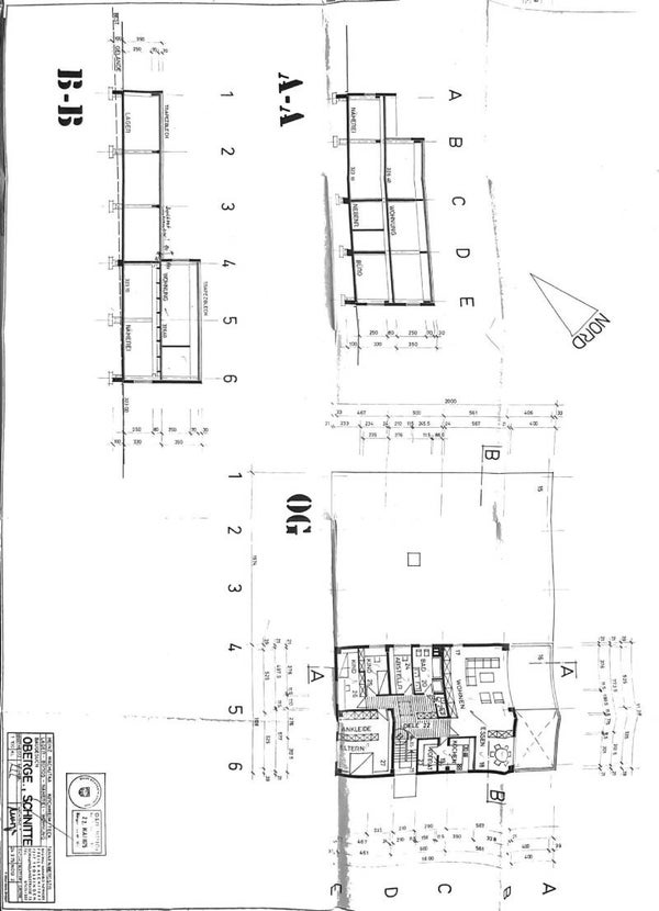
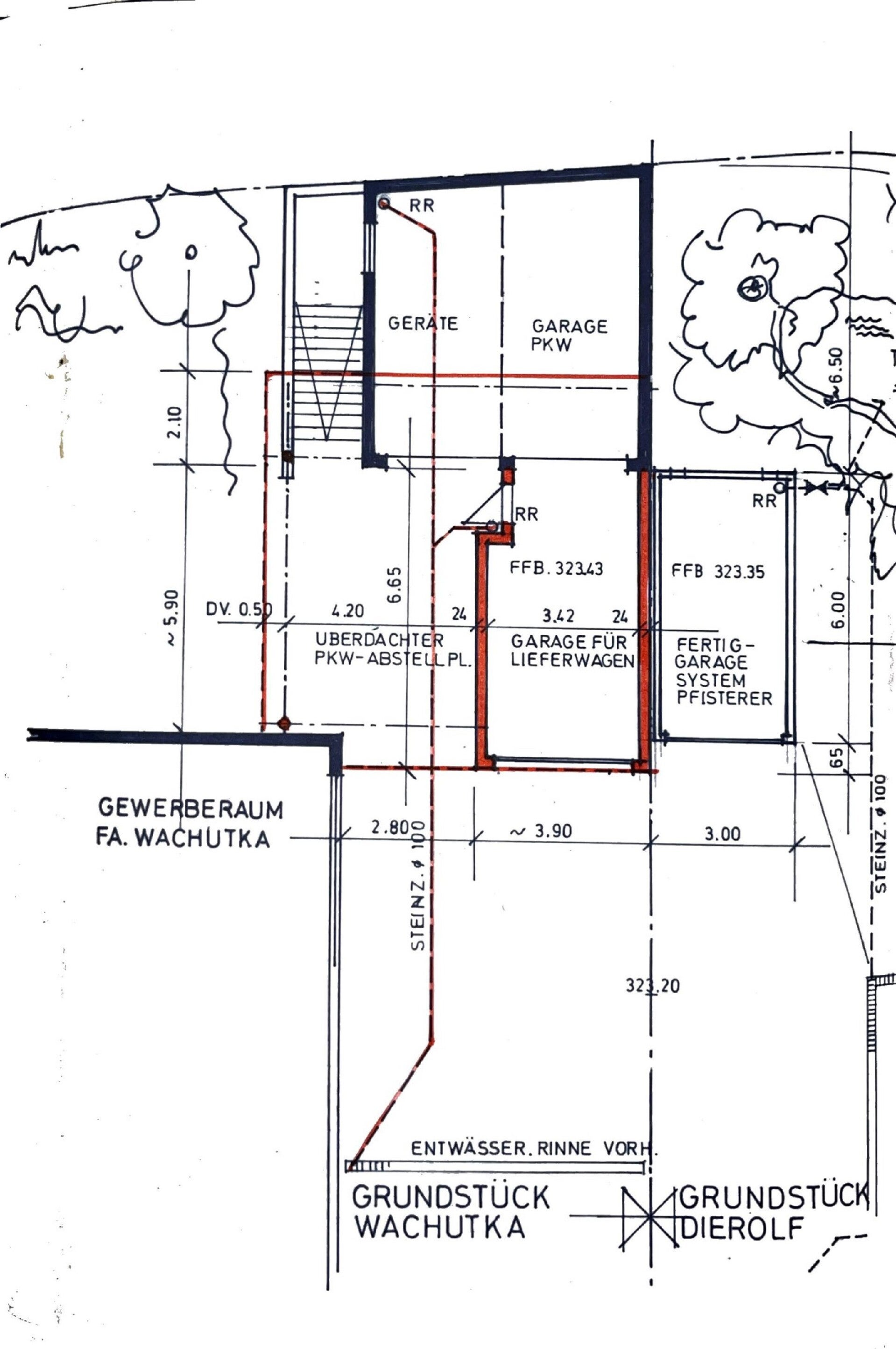
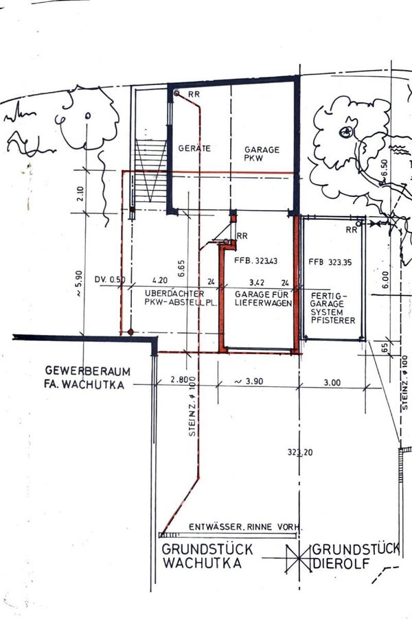
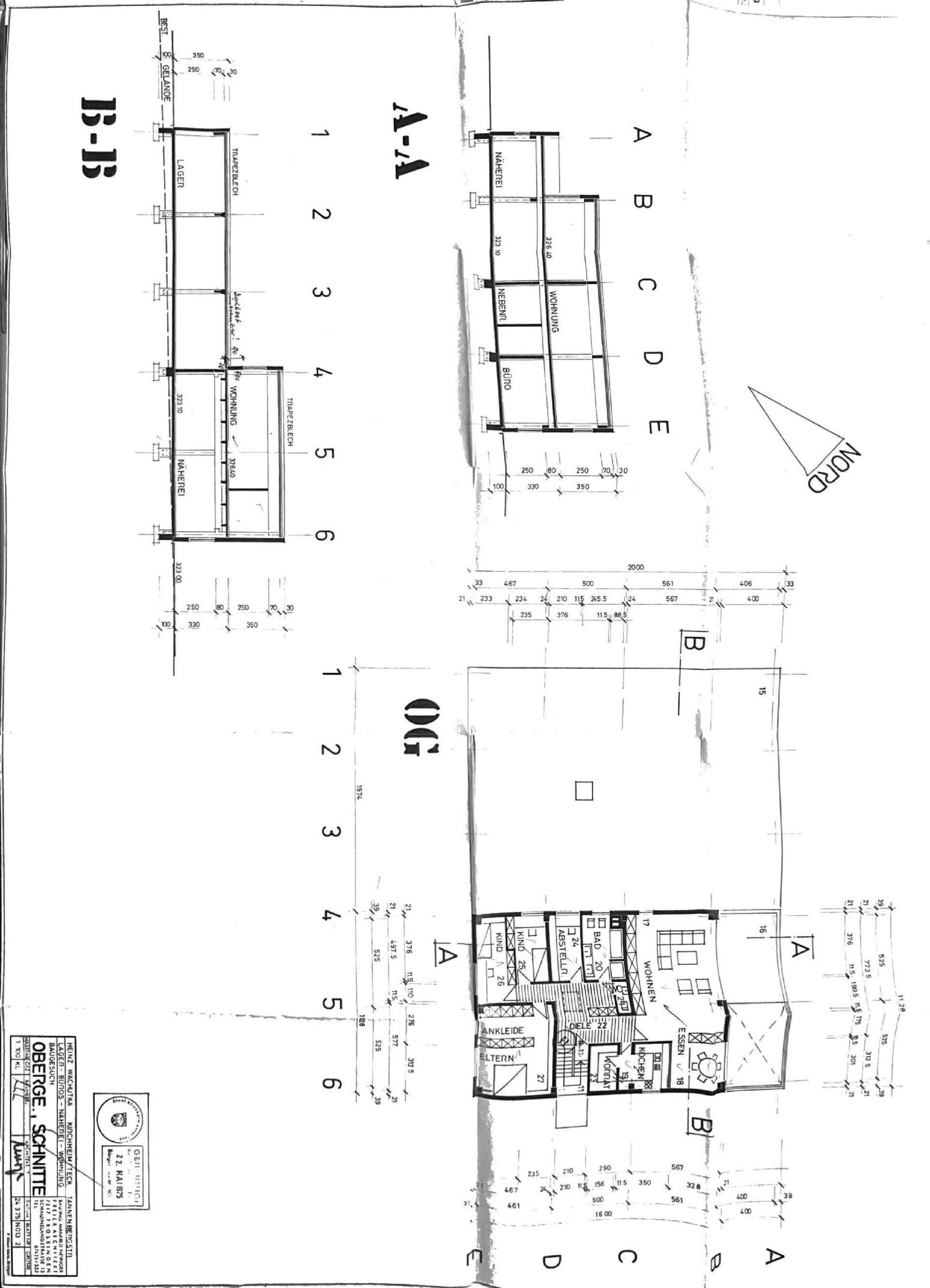
Eine Immobilie, drei Möglichkeiten: Dieses flexible Objekt im Herzen der Stadt Kirchheim Teck vereint Arbeiten, Wohnen und eine attraktive Kapitalanlage. Die rund 150 m² große Lagerfläche im Erdgeschoss bietet ideale Voraussetzungen für Gewerbetreibende und sichert eine hervorragende Logistikanbindung. Darüber erstrecken sich zwei modern gestaltete Wohneinheiten, die vielfältige Nutzungsmöglichkeiten eröffnen – ob zur Eigennutzung oder als sichere Mieteinnahme. Ein besonderes Highlight ist die große, blickdichte Dachterrasse, die einer der Wohnungen eine exklusive Oase der Ruhe verleiht. Zusätzliches Potenzial bietet die Möglichkeit, eine dritte Wohneinheit auszubauen und so die Rendite weiter zu steigern. Perfekt für Kapitalanleger, die ein vielseitiges Objekt suchen, oder für Unternehmer, die Arbeiten und Wohnen mit der Option auf Mieteinnahmen clever kombinieren wollen.